Diese Zwei Villen liegen in direkter Nachbarschaft zum Rhein. Auf einem Grundstück von jeweils ca. 1000m². Der Entwurf geht insbesondere auf die Urbane Lage und den Städtebaulichen dörflichen Kontext ein. Die Bestandsgebäude werden als Grundlage des Entwurfes erhalten und mit in das Gesamtkonzept eingebunden. Entstanden sind 2 großzügige Villen mit Garten und Rheinblick von den Obergeschossen. Die Architektur spiegelt die lokalen Materialien und die Nachbarbebauung wieder und gliedert sich nahtlos in den Städtebaulichen Kontext ein.
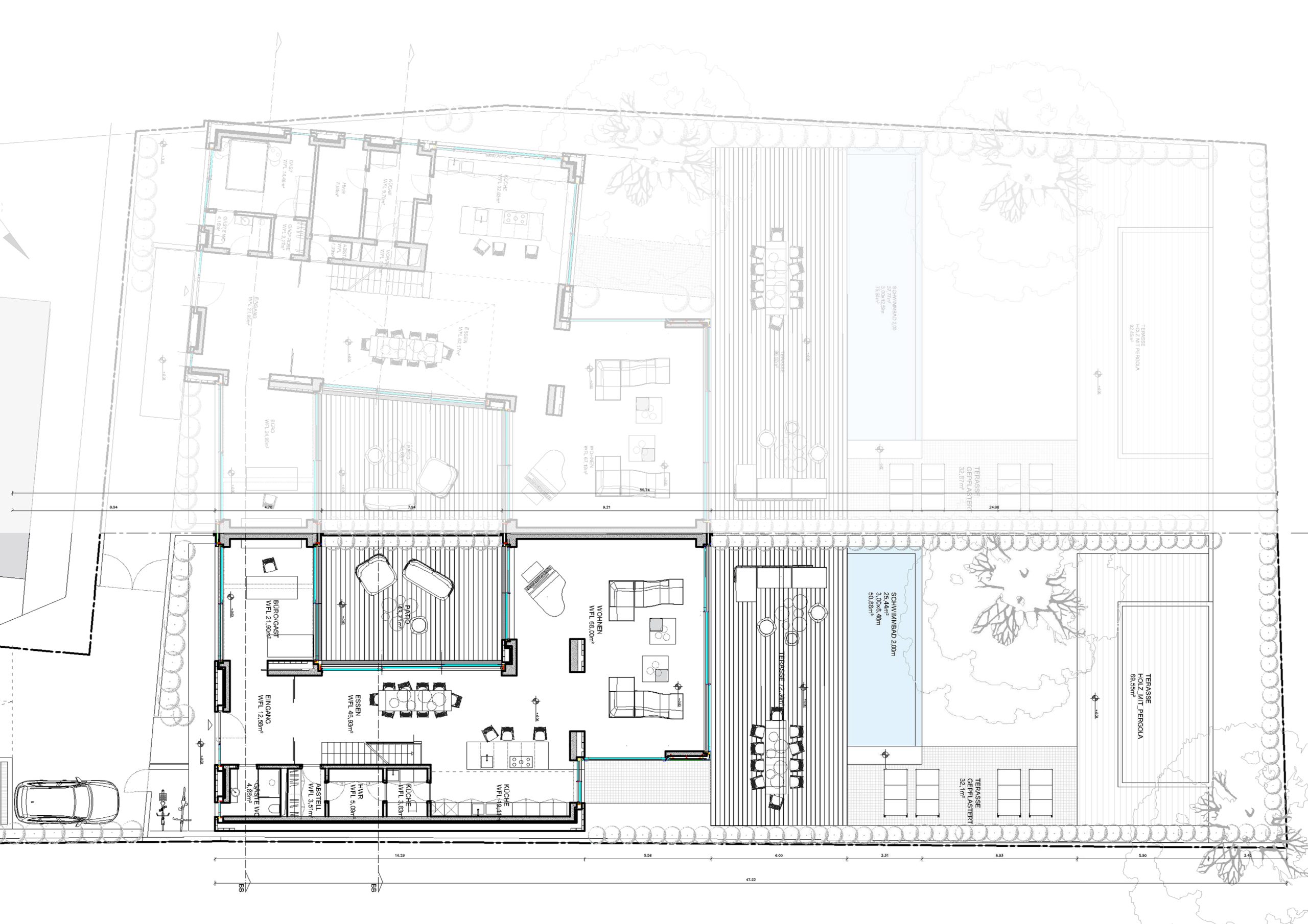
Das Architekturkonzept öffnet großzügige Flächen und fügt die verschiedenen Zonen über Licht und Blick zusammen. Separiert durch nutzbare Außenräume entstehen fließende und variablen Übergänge. Im Erdgeschoss öffnen sich die Räume zum Außenraum. In den Patio und ebenso auf die großzügigen Terrassen. Über großflächige Schiebeelemente lassen sich die einzelnen Zonen insbesondere in den Sommermonaten miteinander verbinden. Im Obergeschoss finden sich die Schlafräume, eine Mastersuite mit ensuite Badezimmer, Kinderzimmer und großflächige private Dachterrassen mit einzigartigem Blick in die Rheinauen bei Düsseldorf.
Der Zugang erfolgt über einen park ähnlich angelegte Auffahrt. Der Besucher wird von einem privaten Patio in Empfang genommen und zum Eingang geleitet. Die Sichtachsen öffnen sich und lassen den Blick bis in den Garten zu sobald man das Gebäude betritt. Alle Räume sind fliesend miteinander verbunden. Es gibt keine ersichtlichen Grenzen. Bei Bedarf kann die nötige Zonierung durch große Schiebeelemente erzeugt werden. Die Räume sind lichtdurchflutet und alle Flächen werden durch den geschützten Patio miteinander Verbunden. Alle Nutzräume liegen kompakt und gut zugänglich nahe am Eingangsbereich. Zwei Tiefgaragenstellplätze mit direktem Zugang zum Wohnhaus und großzügige Räume im Untergeschoss zur freien Verwendung runden die Nutzung ab.